

| Технические характеристики | Описание |
|---|---|
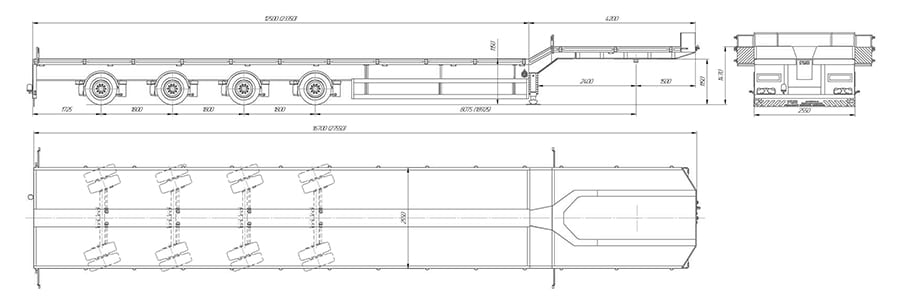
| Габариты: | • длина рабочей платформы 12500/23350 мм |
| Вес: | • собственный вес до 14000 кг |
| Оси и подвеска: | • пневматическая, полурессора усиленная |
| Покраска: | • предварительная очистка металла методом дробеструйки, пескоструйки. Два слоя высококачественного грунта и два слоя устойчивой к повреждениям краски европейских производителей |
| Металл: | • высококачественная машиностроительная сталь S690, S350 отечественного или импортного производства, с высокими параметрами упругости и прочности |
| Базовая модель комплектуется: | • Настил рабочей платформы, дерево толщиной 40 мм |
| Дополнительные опции: | • 9,10,12 тонне оси SAF или BPW |
| Гарантия: | • на рамную конструкцию предоставляется гарантия 1 год или 100 т км пробега |
| Преимущества НАШЕГО прицепа | • прочная проверенная временем конструкция, которая выдерживает страшные перегрузки плохих украинских дорог Обращайтесь, будем рады ответить на Ваши вопросы. |
OTP Leasing https://otpleasing.com.ua/

АТ “Ощадбанк” //www.oschadbank.ua/dotacii/deshevi-krediti/

АТ КБ “ПриватБанк” //privatbank.ua/business/prohramy-kompensatsiyi-dlya-ahrobiznesu

“АТ ПУМБ” https://b2b.pumb.ua/finance/finliz
Для получения компенсации нужно иметь счет в банке, статутный капитал которого больше 75% принадлежит государству Украины
Сделать оплату прицепа в банке
Подать в банк документы:
Компенсация возвращается после внесения данных в реестр Министерства аграрной политики на протяжении дня.
Покупать низкорамные прицепы компании ТАД стало еще выгоднее!